2-Raumwohnung mit Terrasse

Objekt ID: 135279/13
Braunsbedra
Poststraße   10
Erdgeschoss
2 Zimmer
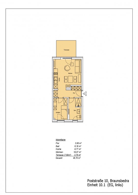
Fläche ca. 40,70 m²
Mietobjekt
367 €
Kaltmiete:
494 €
Warmmiete
Provisionsfrei!
Käuferprovision

ZUSATZINFORMATIONEN

Kaltmiete:
367,00 €
Warmmiete:
494,00 €
Nebenkosten:
86,00 €
Wohnfläche ca.:
40,70 m²
Zimmer:
2,0
Schlafzimmer:
1
Badezimmer:
1
Terrassen:
1
Referenznummer
135279/13

Ausstattung

Dusche
Fliesenboden
Linoleumboden
Fernwärme
Fussbodenheizung
Personenaufzug
Baujahr:
1966
Energieeffizienzklasse
c

Energiepass

Energiepass Art:
Verbrauch
Verbrauchkennwert:
96 kWh/(m²a)

Objektbeschreibung

Zur Lage des Objektes kann man nur sagen: Zentral, zentraler, Poststraße!!! Mitten im Stadtzentrum von Braunsbedra, das mit Geschäften, Ärzten, Restaurants und Kindertagesstätten sowie Schulen auf Sie wartet, liegt die Poststraße 8-10. Flankiert von vier wunderschönen Seen können Sie maritimes Flair genießen. Ob Spannung am Hasse-See, Erholung an der Marina Braunsbedra am Geiseltalsee, Drachenboot-Action am Großkaynaer See oder Fahrradfahren am Rundstedter See - für alle ist etwas dabei. Braunsbedra liegt im Mittelpunkt des Metropolengürtels von Mitteldeutschland! Somit sind Sie mit dem Auto in kurzer Zeit in der Weinstadt Freyburg, in den Domstädten Merseburg und Naumburg oder in den Großstädten Halle (Saale) und Leipzig. Die Autobahnanbindungen A38 und A9 sowie die Nähe zum Flughafen Halle/Leipzig runden die gute Lage von Braunsbedra ab.

Ausstattung

Aufzug, Bad mit Dusche, PKW-Stellplatz möglich, wenn verfügbar, Terrasse Bei uns geht jetzt richtig die Post ab!!! Das zukünftig vollständig neu sanierte und umgebaute Objekt Poststraße 8 - 10 besticht durch seine moderne Raumaufteilung. Die Hauseingänge Nr. 8 und Nr. 10 werden mit Aufzugsanlagen, die Sie vom Keller bis ins Dachgeschoss befördern, ausgestattet. So erreichen Sie auf direktem Weg Ihre Wohnung. Im Hauseingang Nr. 9 sind die beiden Erdgeschosswohnungen über wenige Treppenstufen erreichbar. Jede der 21 Wohnungen verfügt über einen großen Balkon oder eine Terrasse. Die großzügigen Bäder werden durch Fliesen, welche dem heutigen Zeitgeist entsprechen, und ihrer Ausstattung zu wahren Wellnessoasen. Je nach Grundriss sind sie mit Badewanne und/oder bodengleicher Dusche ausgestattet. Natürlich darf auch ein Handtuchheizkörper nicht fehlen. In allen Wohnräumen sowie in der Küche wird Designbelag in einer hellen Holzoptik verlegt. Wand- und Deckenflächen werden mit weißem Glattflies tapeziert. Dank dem Komfort einer Fußbodenheizung in den Wohnungen gehören kalten Füße der Vergangenheit an. Die einzigartige Wärme dieses Heizsystems steigert das Wohlbefinden erheblich. Zusätzlich zu Ihrer Wohnung werden ein Kellerabteil, ein gemeinschaftlicher Wasch-maschinen- und Trockenraum sowie die Möglichkeit der separaten Anmietung von Stellplätzen verfügbar sein.

INTERESSE GEWECKT? Objekt ID: 135279/13

Objektdaten Drucken Expose als PDF

IHR ANSPRECHPARTNERImmobilien GmbH

WEITER EMPFEHLENan Freunde und Familie


BSDimmo Featured - Weitere interessante Immobilien



 Merkzettel (0) KONTAKT